Reference for SFO Martal, Ærø

Opførelse af ny SFO

Bygherre:

Ærø Kommune

Arkitekt:

GRAA ARkitekter A/S

Areal:

573 m2

Færdiggjort:

2022 - 2023

Byggeriet

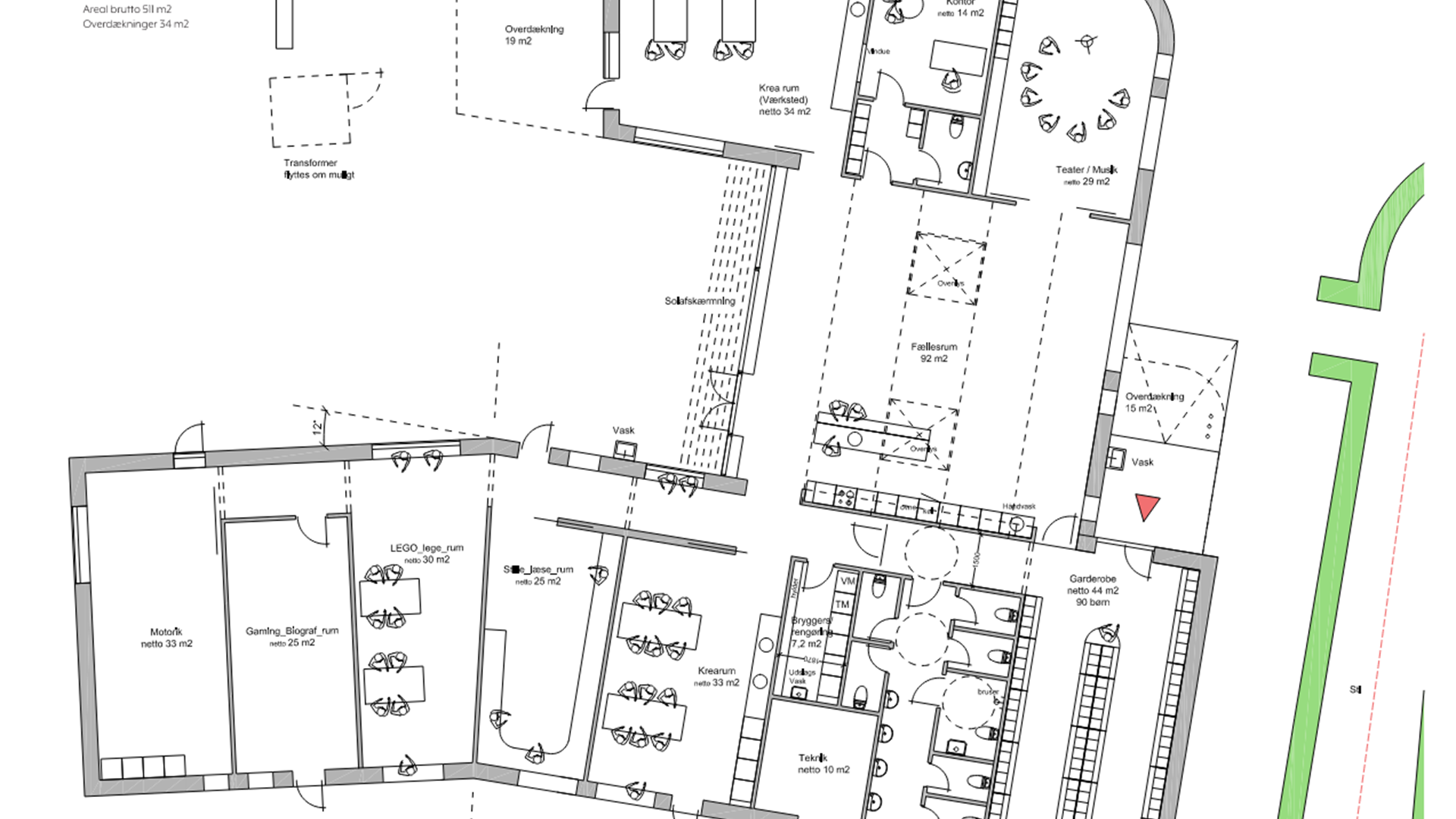
Projektet omfatter opførelse af ny SFO med murede facader og bagmure i beton på i alt 573 m2, heraf 53 m2 tag-rum samt 46 m2 overdækkede arealer.

Bygningen er opført som erstatning for eksisterende SFO, hvor nuværende parkeringsforhold genanvendes.

Derudover er etableret et nyt skur på 43 m2 ligesom der er anlagt ny legeplads, nye udvendige opholds- og adgangsarealer samt beplantning.

To matrikler er sam-matrikuleret.

Tagflader varierer i udformning, hvorfor tagbeklædning er udført med hhv. ståltrapezplader samt vingetegl med undertag af tagpap.

Byggeriet opfylder BR2020 energikrav og er udført i overensstemmelse med ABR18/YBL18.

Udførte ydelser

Ingeniørprojektering, herunder brand, el, vvs og ventilation samt anlæg. Desuden udførelse af BIM og IKT.


Udbudsform

Hovedentreprise.

Bjarne Linde Jensen

Afdelingschef Odense
Tlf.: +45 22 36 37 24
Mail: blj@ingenior-ne.dk

Se flere Projekter herunder

Gør karriere hos INGENIØR'NE

Se ledige job
Job
Luk
Job